✎Home Data
● 建築形式/夾層
● 房屋狀況/中古屋/老屋翻新
● 室內坪數/18坪
● 空間格局/兩廳 兩衛 三房 一廚房 一儲物間
● 主要建材/石材、系統櫃、木地板、鐵件、木紋飾板、線燈 等
「當初買下這間房子時,我們最喜歡那3米8挑高空間,但原屋的夾層設計讓屋內採光不夠房間數也不足。」屋主太太擔憂著說。隨著一家四口的生活需求日益增加,原本的空間已經顯得有些緊湊,因此他們決定重新規劃,讓空間不只是“高”,更要“好用”。
整體設計以古典線板等距分割為主要語彙,弧形元素為輔,從玄關一路延伸至公私領域。這樣的安排,不僅在視覺上營造出優雅節奏,也讓空間層次更為細緻與柔和。
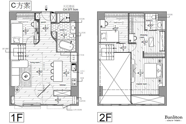
>>〔挑高夾層設計〕古典線條與弧形的共鳴:配置圖
透過設計師的現場評估與多次討論後,夫妻倆提出明確需求:希望能在保留挑高優勢的基礎上,打造出屬於夫妻與兩個孩子的雙層空間。主臥與女孩房位於上層,而哥哥的房間則規劃在下層。「女主人對古典輕奢風格特別有感,我們於是以線板框與弧形造型為主軸,調和出古典優雅卻不顯厚重的生活質地。」設計師分享道。

>>〔挑高夾層設計〕玄關:從門口開始的氣度
考量到一家四口鞋量豐富,設計師在玄關設計了兩座量體充足的鞋櫃,並以熱壓成型的古典門片結合線板造型,呼應整體風格。由玄關進入客廳的走道以「漸進放大」的比例設計,讓空間在動線中自然展開,帶出迎賓的開闊感。

>>〔挑高夾層設計〕客廳:挑高的優雅藍
挑高區是這個家的靈魂所在。沙發主牆以灰藍色為基底,搭配古典線板框的等距排列,營造出沉穩卻不失層次的視覺張力。樓梯以黑色鐵件扶手收邊,線條典雅且充滿韻味。
最特別的是電視牆的設計,捨棄傳統大體量牆面,改以訂製旋轉鐵件電視架,讓屋主無論在中島用餐或廚房料理時,都能輕鬆轉向觀看。這樣的巧思,讓空間兼具美感與機能。

>>〔挑高夾層設計〕廚房與中島:家的日常核心
延續客廳的優雅氛圍,廚房以開放式設計搭配中島,作為料理與用餐的核心區域。中島同時兼具備餐桌功能,滿足一家四口共餐與互動的時光。純淨的白色調與金屬線條交織出輕奢質感,使日常料理也成為美好的儀式。

>>〔挑高夾層設計〕客浴:輕奢細節的延伸
客浴空間以米色磁磚為主調,搭配輕奢金屬件與柔光燈飾,形成如飯店般的渡假氛圍。百葉窗設計兼顧採光與通風,使每日梳洗成為享受。

>>〔挑高夾層設計〕男孩房:夢想的秘密基地
在舊有空間規畫裡下層是沒有房間,我們利用樓梯下的旋轉空間,規劃出4坪大小的男孩房以及儲藏室,衣櫃為開放式收納,減少厚重櫃體帶來的壓迫感,也讓空間更加通透輕盈。


>>〔挑高夾層設計〕儲藏室

>>〔挑高夾層設計〕曬衣與收納:機能與美感並存
設計師將曬衣區獨立於公領域之外,以整排電器櫃與收納櫃作為隔界,不僅讓動線更清晰,也維持整體視覺的整潔一致。全屋收納皆以隱形式規劃,兼顧機能與風格一致性。

在古典線條的延伸與柔光的轉折之間,家的格局逐漸成形。
而在下集,將揭曉上層的主臥、女孩房與浴室空間,如何在有限高度中創造舒適與安全兼具的生活美學。
想看更多關於此案的裝修內容嗎 ? 歡迎訂閱裝潢便利通YT頻道,追蹤我們,修裝不迷路!!!
☞點我看所有案例作品☜
裝潢便利通Banliton
服務地點:台北市信義區光復南路555號5樓
客服專線:02-2723-6655
官網:www.banliton.net
線上諮詢表單☞有裝潢需求,免來電立即預約